威客电竞

提醒

很歉仄!您正在使用的浏览器版本过低,,,,,,,
无法获得最好的体验效果,,,,,,,建议您升级后再试!

继续会见>>

为获得最佳浏览体验,,,,,,,建议您升级或选用其他浏览器:

Chrome(强烈推荐) Firefox  IE  Safari  Opera 
产品中心Banner
  • 威客电竞·(中国区)VKGAME官网
  • 威客电竞·(中国区)VKGAME官网
威客电竞·(中国区)VKGAME官网

Profinet从站????椋⊿M277PN-36)

订货号:CTH2 277-0PN36

规 格:CTH200系列Profinet从站????,最多可扩展8个CTH200系列IO????

概览

功效特点:

SM277PN-LProfinet从站????椋,,,,仅支持RT实时通讯模式,,,,,,,最多可扩展8个CTH200系列IO????椋ú话–AN????椤⒃丝啬????椤⒊浦氐忍厥饽????椋


框架图 :

架构-02.png

手艺参数
产品型号CTH2 277-0PN36
物理特征
尺寸(W×H×D)71×80×62 mm
电源消耗
额定输入电压24V DC
输入电压规模20.4V~28.8V DC
输入电流0.8A
极性反接;;;;;
总线电源电压+5V DC
总线电源电流1.1A
隔离外部电源与系统电源隔离
电源;;;;;供电电源端提供反接;;;;;すπЪ袄擞课展π
LED指示灯特征
24V电源指示灯(绿色)ON = 24VDC供电正常
OFF = 无24VDC供电
SF指示灯(红色)ON = 扩展I/O总线故障或者PROFINET????楣收
OFF = 无错
BF指示灯(红色)ON = PROFINET总线通讯故障(未毗连交流机,,,,,,,未检测到网络)
Blinking = 组态设置纷歧致
OFF = 无错
MT指示灯 (黄色)          (维护指示灯)ON = 丧失同步
OFF = 无错
P1R/P2R口指示灯(绿色)ON = 有到交流机/PN主站的毗连
OFF = 没有到交流机/PN主站的毗连
P1R/P2R口指示灯(黄色)ON = 有到交流机/PN主站的数据收发
OFF = 没有到交流机/PN主站的数据收发
扩展I/O能力
每从站支持最多????槭8(数字量????椤⒛D饬磕????椤⑽露饶????椤ID控制????椋,,,,不包括其他类型的????椋
协议类型CTH200 PLC自界说4MHZ总线协议
每从站IO最大设置模拟量IO最大设置可达56AI/28AQ
数字量IO最大设置可达224DI/224DQ
PROFINET通讯口
通讯接口1个双RJ45口
数据传输速率以太网效劳的传输率为:100 Mbps 
PROFINET的传输率为:100 Mbps,,,,,,,全双工
所支持以太网效劳ping、arp、网络诊断 (SNMP)/MIB-2、LLDP
实时性RT:支持,,,,,,,最小周期1ms
IRT:不支持
第三方PROFINET主站支持
从站间通讯距离最长100m (100BASE-TX)
拓扑结构支持星形、树形、线型拓扑结构
不支持环形拓扑结构
隔离通讯口隔离
硬件组态功效
导入的文件类型PROFINET GDS文件XML名堂
第三方PN主站添加的CTH2 277-0PN36????橹С8个槽位的扩展
扩展????榭商砑邮至俊⒛D饬俊⑽露饶????楹蚉ID控制????椋,,,,其他的????椴豢商砑


典范应用
装置规格

接线规格

CTH2 277-0PN36接口示意图

200接线.jpg 

 

 

 

 

  CTH2 277-0PN36接口界说

 外部电源接口界说

3位可拆卸端子

符号

信号界说

图片1.png 

L+

24V电源正

M

24V电源负

接地.png 

大地

 

RJ45接口界说

 

RJ45网口

位号

信号

信号界说

2.png 

1

TX+

数据发送正端

2

TX-

数据发送负端

3

RX+

数据吸收正端

4

--

--

5

--

--

6

RX-

数据吸收负端

7

--

--

8

--

--

毗连器外壳

PE

机壳接地

   

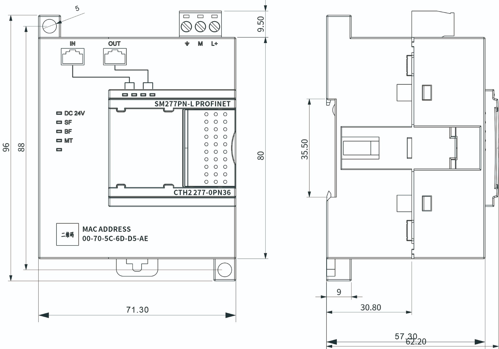
  装置尺寸

CTH2 277-0PN36????有装置孔,,,,,,,可以很利便地装置在背板上,,,,,,,????樽爸贸叽缂4-6

 

sm 277尺寸.jpg

4-6  装置尺寸图

  装置要领

在装置和拆卸CTS7/CTH2 277-0PN36????时,,,,,,,必需预先接纳适当的清静步伐并且确认CTS7/CTH2 277-0PN36????的供电被切断。。。。。

CTS7/CTH2 277-0PN36????既可以装置在控制柜背板上,,,,,,,也可以装置在标准DIN 导轨上;;;;;既可以水平装置,,,,,,,也可以笔直装置。。。。。

装置面板

1凭证图4-6的尺寸要求定位打孔;;;;;

2用合适的螺钉将????槔慰吭诒嘲迳;;;;;

3)若是使用了扩展????椋,,,,将扩展????榈谋馄降缋铝角案窍旅娴睦┱箍。。。。。

DIN 导轨装置

1)将导轨牢靠在背板上;;;;;

2)翻开????榈撞康DIN夹子,,,,,,,将????楸巢靠ㄔDIN导轨上;;;;;

3)若是使用了扩展????椋,,,,将扩展????榈谋馄降缋铝角案窍旅娴睦┱箍;;;;;

4)旋转????樘DIN导轨,,,,,,,合上DIN夹子;;;;;

5)仔细检查????樯DIN夹子与DIN导轨是否细密牢靠好;;;;;

6)为阻止????樗鸹担,,,,不要直接按压????檎妫,,,,而要按压装置孔的部分。。。。。

注重.png 

????在震惊较量大的使用情形或者接纳笔直装置方法时,,,,,,,应该使用DIN导轨挡块。。。。。若是系统处于高震惊情形中,,,,,,,使用背板装置方法可以获得较高的震惊;;;;;て芳。。。。。

 

 


样本/手册/软件
返回列表

关注我们

威客电竞·(中国区)VKGAME官网

深圳市南山区打石一起深圳国际立异谷6栋A座9层

400-700-4858
0755-86226822

market@co-trust.com

版权所有:威客电竞 粤ICP备13051915号 Powered by szweb

【网站地图】【sitemap】